Садовий будинок з надвірними будівлями та спорудами пл. 105,1 кв.м., та земельна ділянка пл. 0,079 га, К/Н 5123755100:01:003:0918, адреса: Одеська обл., Одеський р-н (Овідіопольський р-н), сщ/рада. Овідіопольська, "Дністровець" садовий кооператив, б. 35

Special Price 521012.00 грн

Состояние аукциона:торги не відбулись

Номер лота:595921

Дата проведения аукциона:2026-04-06 09:00:00

Дата окончания торгов:2026-04-06 18:00:00

Дата окончания подачи заявок:2026-04-06 08:00:00

Стартовая цена:521012.00 грн

Гарантийный взнос:26050.60 грн

Шаг аукциона:10420.24 грн

Область:Одеська обл.

Месторасположение имуществаОдеська обл., Одеський р-н (Овідіопольський р-н), сщ/рада. Овідіопольська, "Дністровець" садовий кооператив, б. 35

Дата публикации:2026-03-17 10:51:54

Протокол торгов:Протокол

  • Категория: Житлова нерухомість
  • Предмет іпотеки:
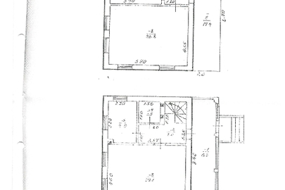
  • Розмір житлової площі будинку, квартири, м.кв.: 66.4
  • Pозмір нежитлової площі будинку, квартири, м.кв.: 38.7
  • Кількість кімнат: 3
  • Поверх, на якому знаходиться квартира, кімната:
  • Кількість поверхів будинку: 2
  • Площа кожної кімнати, м.кв.: 1-а кімната - 27,1 кв.м..; 2-а кімната - 12,5 кв.м.; 3-а кімната - 26,8 кв.м.
  • Iнформація про допоміжні, підсобні приміщення та споруди: Гараж - 46,2 кв.м.; веранда - 15,5 кв.м.; коридор - 8,0 кв.м.; санвузол - 2,5 кв.м.; кухня - 7,0 кв.м.; коридор - 5,7 кв.м.; балкон - 17,4 кв.м..
  • Встановлені обмеження:
  • Oбмеження на використання квартири, будинку:
  • Відомості про земельну ділянку, на якій розташований будинок: Земельна ділянка, кадастровий номер: 5123755100:01:003:0918, цільове призначення: для ведення садівництва, площа: 0,079 га.
  • Правовий режим земельної ділянки: Приватна власність
  • Розмір земельної ділянки, га.: 0.079
  • Кадастровий номер земельної ділянки: 5123755100:01:003:0918

Use spaces to separate tags. Use single quotes (') for phrases.

Садовий будинок з господарчими будівлями та спорудами, загальною площею 105,1 кв.м., житловою площею 66,4 кв.м., що розташований на земельній ділянці, кадастровий номер: 5123755100:01:003:0918, цільове призначення: для ведення садівництва, площа: 0,079 га.

Садовий будинок загальною площею 105,1 кв.м., житловою площею 66,4 кв.м., що складається з: гараж - 46,2 кв.м.; веранда - 15,5 кв.м.; коридор - 8,0 кв.м.;житлова - 27,1 кв.м.; санвузол - 2,5 кв.м.; кухня - 7,0 кв.м.; коридор - 5,7 кв.м.;житлова - 12,5 кв.м.; житлова - 26,8 кв.м.; балкон - 17,4 кв.м..

Будинок 2004 року побудови. Фундамент: бетонні блоки, стіни: камінь, перекриття: залізобетон, покрівля: шифер. Будинок обладнано електроосвітленням та водопостачанням.

Садовий будинок належить боржнику на підставі договору купівлі-продажу, 3528, 11.12.2006, посвідчений приватним нотаріусом Овідіопольського районного нотаріального округу, О.О.Панченко, Одеської області.

Земельна ділянка належить боржнику на підставі державного акту серії ЯЕ №672466 виданого 01.11.2007 року, відділом земельних ресурсів в Овідіопольському районі Одеської області.

Зареєстровані особи відсутні.

  • 2026-03-20 17:09: Участник #1 - відхилено
  • 2026-03-20 21:47: Участник #2 - відхилено
  • 2026-03-22 22:03: Участник #3 - відхилено
  • 2026-03-24 23:22: Участник #4 - відхилено
  • 2026-03-30 00:23: Участник #5 - відхилено

Нові
ЛОТИ

Ви можете подивитися всі аукціони натиснувши на кнопку нижче
Подивитись все