Нежитлова будівля, загальною площею 229,8 кв.м., що розташована за адресою: м. Одеса, вул. Кримська, буд. 71А

Special Price 6672921.00 грн

Состояние аукциона:торги відбулись

Номер лота:587868

Дата проведения аукциона:2025-11-21 09:00:00

Дата окончания торгов:2025-11-21 18:00:00

Дата окончания подачи заявок:2025-11-21 08:00:00

Стартовая цена:6672921.00 грн

Гарантийный взнос:333646.05 грн

Шаг аукциона:66729.21 грн

Область:Одеська обл.

Месторасположение имуществам. Одеса, вул. Кримська, буд. 71А

Дата публикации:2025-10-22 16:32:24

Протокол торгов:Протокол

  • Категория: Будівлі
  • Предмет іпотеки:
  • Кадастровий номер земельної ділянки:

Use spaces to separate tags. Use single quotes (') for phrases.

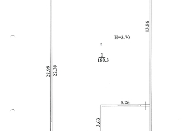
Нежитлова будівля, загальною площею 229,8 кв.м., що в цілому складається з: основна - 180,3 кв.м., основна - 42,4 кв.м., основна - 7,1 кв.м.. Висота приміщень - 3,7 м. Будівлю обладнано електропостачанням та освітленням, каналізацією та водовідведенням, водопостачанням, вентиляцією, опаленням (місцеве).

Місцезнаходження: Одеська область, місто Одеса, вулиця Кримська, будинок 71А.

Право власності на підставі акту приймання-передачі, серія та номер: НТС127506, виданий 28.01.2025, видавник: приватний нотаріус.

Право користування на підставі договору найму будівлі або іншої капітальної споруди (їх окремої частини), серія та номер: №1086, виданий 05.05.2025, видавник: Лічман І.М., приватний нотаріус Одеського міського нотаріального округу, Договір оренди нежитлової будівлі. Дата закінчення дії: 05.05.2035.

  • 2025-10-22 17:13: Участник #1 - відхилено
  • 2025-10-23 11:20: Участник #2 - відхилено
  • 2025-10-27 12:09: Участник #3 - відхилено
  • 2025-11-08 20:17: Участник #4 - відхилено
  • 2025-11-12 11:27: Участник #5 - відхилено
  • 2025-11-13 20:59: Участник #6 - відхилено
  • 2025-11-18 10:50: Участник #7 - повернено
  • 2025-11-19 13:19: Участник #8 - переможець
  • 2025-11-20 17:36: Участник #9 - відхилено

Нові
ЛОТИ

Ви можете подивитися всі аукціони натиснувши на кнопку нижче
Подивитись все